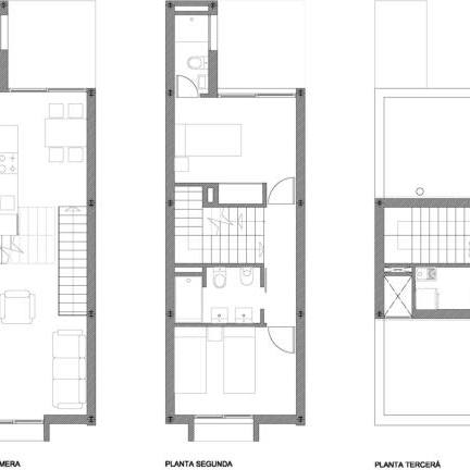
La parcela, destinada a una vivienda unifamiliar, ostenta una fachada de 3,97 metros de ancho y un fondo de 12,05 metros, configurando una superficie construible de 140,05 metros cuadrados distribuidos armoniosamente en tres plantas más un ático. Este diseño está meticulosamente planificado para optimizar el espacio disponible, prometiendo una residencia cómoda y estéticamente agradable. La altura de la vivienda unifamiliar y los escasos 3,47 metros de ancho útil, transformarán la escalera en una pieza esencial de compartimentación que se desarrolla entre las habitaciones, brindando un flujo fluido y una conexión integral entre los diferentes niveles de la casa.
El diseño del alzado rinde homenaje al entorno urbano, reproduciendo el aparejo inglés en tonos marrones que se complementan maravillosamente con la paleta de colores naturales de la zona. Esta elección de diseño no solo refleja una apreciación por la estética tradicional, sino que también proporciona un sentido de cohesión visual con las estructuras circundantes, permitiendo que la vivienda se integre suavemente en el paisaje urbano.
Una característica distintiva de la fachada son los dos huecos superpuestos que se unifican en un solo balcón, manteniendo una proporción armoniosa con el resto de la estructura. Este balcón promete ser un espacio donde los residentes pueden disfrutar de vistas despejadas y aire fresco.
La vivienda unifamiliar está diseñada pensando en la funcionalidad y la comodidad, con una distribución que maximiza el espacio disponible. Cada detalle, desde la elección de los materiales hasta la disposición de las habitaciones y los espacios de vida, está meticulosamente planificado para asegurar una experiencia de vida confortable y estéticamente gratificante para los futuros habitantes. Esta vivienda promete ser un oasis de calma y belleza en medio del bullicio de la vida urbana.




